全球财富生活规划平台
微信关注
微信公众号
咨询顾问
小程序
全球移民房产严选
智能移民
商务合作
加入移民交流群
登录 / 注册
个人中心
注销
首页
移民国家
北美洲
美国
圣卢西亚
圣基茨尼维斯
多米尼克
安提瓜巴布达
加拿大
格林纳达
澳洲
新西兰
瓦努阿图
澳大利亚
欧洲
希腊
黑山共和国
德国
马耳他
摩尔多瓦
英国
西班牙
意大利
塞浦路斯
葡萄牙
爱尔兰
亚洲
新加坡
日本
中国
韩国
泰国
马来西亚
菲律宾
圣多美和普林西比
土耳其
几内亚比绍
全部 >
投资移民
投资获身份,高收益回报
希腊
希腊购房移民
美国
美国EB5投资移民
新加坡
新加坡GIP全球投资者计划移民
新西兰
新西兰普通投资移民
中国
香港新资本投资者入境计划
瓦努阿图
瓦努阿图永久居留权计划
马耳他
马耳他永居计划
西班牙
西班牙非盈利居留
韩国
韩国存款移民
塞浦路斯
塞浦路斯永居
全部 >
技术移民
有才首选,无财优选
美国
美国EB-1A移民
美国NIW 国家利益豁免移民
新加坡
新加坡自雇PIC
新加坡自雇移民EP
中国
香港优秀人才入境计划
香港高端人才通行证计划
中国香港输入内地人才计划
澳大利亚
澳大利亚全球人才GTV
加拿大
加拿大曼省留学移民
全部 >
创业移民
投资获身份,高收益回报
美国
美国EB-1C移民
美国跨国公司高管L1签证
新加坡
新加坡家族办公室
日本
日本移民-高级经营管理者签证
日本移民-经营管理签证
新西兰
新西兰普通创业移民
德国
德国法人签证
英国
英国创新创始人签证
加拿大
加拿大联邦创业投资移民(SUV)
全部 >
移民攻略
关于我们
公司简介
安全保障
股东合作
媒体报道
联系我们
当前位置:
移民帮
>
海外房产
>
希腊雅典北部房产
>
房产详情
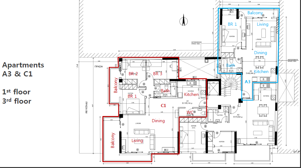
希腊雅典北部钻石公寓Diamond Apartments -C1
38
万欧元
新房top5
房屋设施
三室两卫
建筑面积
125.42平方米
区域位置
雅典北部
房屋类型
公寓
扫描咨询海外房产
咨询热线:400-085-6660
预约咨询
立即咨询,专享1对1服务
电话:
发送验证码
提交预约
扫一扫,帮我找房全球移民房产严选
一站式海外置业
电话咨询 详细了解
挑选心仪 房产
权属律师 委托协议
支付首付 并交换合同
阶段付款 并交易过户
房屋入住 或出租
房屋介绍
配套信息
位置周边
项目亮点
房屋介绍
本案位于雅典北部比雷埃夫斯港-neo市,共有4套公寓可供选择,每套都配有储藏室和停车位、自主加热供暖、防盗门、报警装置等,室内简约装修,厨卫齐全,适宜投资自住出租。
配套信息
阳台
停车位
储藏间
空调
壁炉
电梯
防盗门
家具齐全
太阳能热水器
门面
景观
角房
花园
游泳池
装卸区
警报器
市政规划区
供热系统
精装修
位置周边
比雷埃夫斯 Πειραιάς 希腊
公车站
600米
电车站
700米
地铁站
400米
比雷埃夫斯港
9分钟车程
项目亮点
设施齐全
配有自主加热供暖、防盗门、报警装置等
适合投资自住出租
简约装修,厨卫齐全
移民资讯
美国官方移民数据:EB-1A、NIW遇冷,EB-5提速背后藏警报!
塞浦路斯迎重大利好!欧盟委员会委员表态“完全支持”!
真相了!西班牙“大赦”、德国揽才,都是因为这个危机!
投资入籍新晋黑马!仅需9万美元,最快4周获批、先获批再投资!
美国公司:用人照旧,留人无门!
又白等一个月?美国绿卡2月排期几乎全线停滞!仅这个类别小幅前进!
海外专题
热门资讯
还有这种好事?存款就能拿海外身份!
在港没有住所、往返次数不多,照样成功续签6年签证!
凌晨一封邮件,美国这家公司或有3万人丢掉工作!
花百万美金办美国绿卡,却钱卡两空?他们失败在哪里?
这五类资产正在加速贬值,别抱着不放了!有钱人早就换了方向!
上海再爆独居遗产争议!关键时刻谁能替你做决定?
扫码打开小程序
扫一扫,帮我找房
全球移民房产严选
相似房源推荐
雅典南部
€33.9万
希腊雅典南部瓦克扎公寓A-11943
两室一卫 / 73平方米 / 雅典南部 /
适宜投资出租 / 居住舒适度佳
雅典中心区
€26.7万
希腊雅典市中心典雅二居室-A-11771
两室一卫 / 80.21平方米 / 雅典中心区 /
适宜投资和自住 / 居住舒适度佳
雅典中心区
€25万
希腊雅典市中心雅高公寓ARKO A-6353
两室一卫 / 84平方米 / 雅典中心区 /
适宜投资出租 / 公寓条件良好
雅典南部
€33.9万
希腊雅典南部高性价比两居室ARTE-Α-11248
两室一卫 / 71.87平方米 / 雅典南部 /
适宜投资出租 / 居住舒适度佳
希腊
西班牙
葡萄牙
加拿大
美国
塞浦路斯
武汉
成都
哈尔滨
厦门
上海
北京
香港
杭州
西安
广州
长沙
郑州
石家庄
南京
电话登录
|
微信登录
|
获取
登录
绑定手机号码
您已经使用微信登录,绑定账号即可享受移民帮极致服务
|
获取
立即绑定
我们的专家顾问将在第一时间和您联系,请保持通讯畅通
预约移民帮服务
预约品类:
|
获取
立即预约
我们的专家顾问将在第一时间和您联系,请保持通讯畅通
活动预约
立即预约
您填写的信息不完整
确认
如需咨询,请拨打热线电话:
400-085-6660
恭喜您预约成功
我们已收到您的预约信息,将在24小时之内与您联系,请保持电话畅通。
确认
如需咨询,请拨打热线电话:
400-085-6660
在线咨询
希腊移民
日本移民
智能移民
预约回电
确认
免费材料
TOP
移民专家,一对一服务